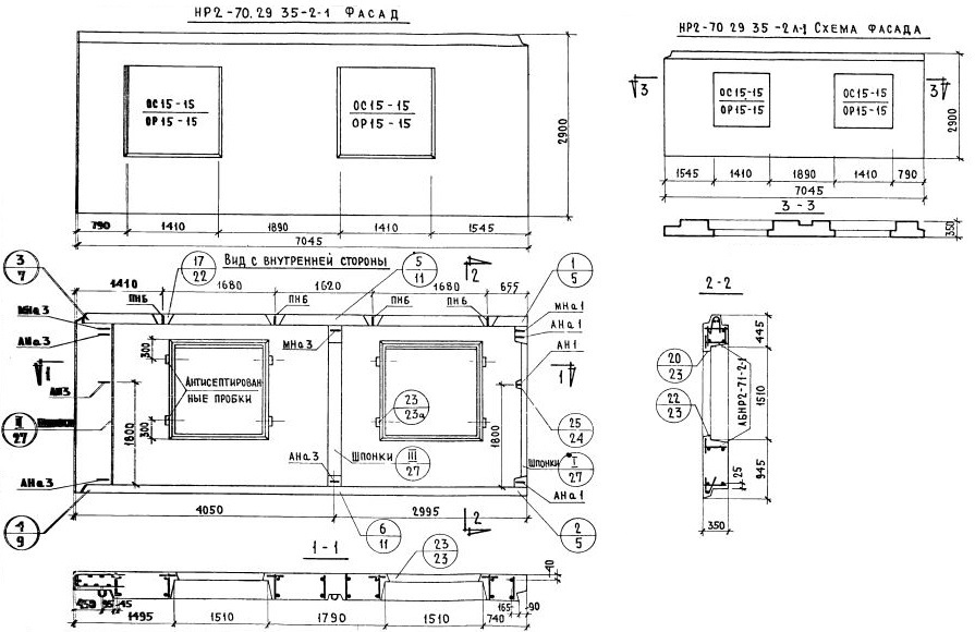
НР2-70.29.35-2-1

Чертеж изделия:
Чертеж НР2-70.29.35-2-1
Характеристики изделия:
ПараметрЗначение
Длина7045 мм
Ширина350 мм
Высота2900 мм
Масса7490 кг
Нормативный документСерия 1.132-1

НР2-70.29.35-2-1   Наружная стеновая панель рядовая по Серии 1.132-1.