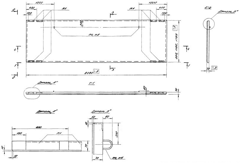
ПСЛН 1,2-6,1-121

Чертеж изделия:
Чертеж ПСЛН 1,2-6,1-121
Характеристики изделия:
ПараметрЗначение
Длина6080 мм
Ширина70 мм
Высота1185 мм
Масса950 кг
Нормативный документСерия 1.432-10

Сборные предварительно напряженные стеновые панели из легких бетонов для неотапливаемых промышленных зданий по Серии 1.432-10.

ПСЛН 1,2-6,1-121  Рядовая панель у температурного шва и в углу зданий по продольной стене, армированная сталью Вр-II.